我有设计需求 登陆 注册
您当前位置:首页 > 设计资讯 > 行业动态 > 小小一居室,设计不将就!
小小一居室,设计不将就! 作者:筑艺匠时间:2020-11-03  547人已看过
摘要 Summary
一居室成了大城市刚需的居住常态,在常规层高,而且户型墙体拆改余地不大的情况下,如何巧妙设计,实现小空间大设计呢?今天给大家带来两个国外设计案例,希望从中获得启发。

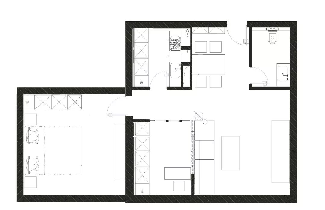
01

高级灰小宅 

Chill Visualization Studio设计



这个一居室小公寓

位于越南河内

实用面积为 58㎡

由 Chill Visualization Studio 设计

屋主为90后年轻夫妇


▲平面图


设计师只对书房墙体进行改动

将两面墙打开后,厨房与走道采光得以优化

解决纯南户部分空间无法采光的问题



大面积采用灰基调,点缀少量蓝色与橙色

考虑到空间较小,材质变化不多

简洁的吊顶采用带状造型

拉伸空间的进深



设计师兼顾美感与功能

在书房与餐厅均设计了大量的储物柜



家具与灯具均选择极简造型

呼应整个空间简约的设计格调



书房神色开放式储物柜与

白色封闭储物柜搭配

带来强烈的视觉冲击力

墙面造型运用极少的东方元素



卧室背景采用斑驳纹理

搭配极简款式的床

符合年轻人追求个性的品位





02

全面开放的单身公寓

Andrey Barinov设计



位于俄罗斯莫斯科

面积为50.8㎡的LOFT小公寓,

由Andrey Barinov设计,

主体色调为灰白,加入了很多的木质元素,

来搭配整体为主的基调,

蓝色点缀,营造出了自然而又舒适的居住环境。


▲平面图


设计师利用地面材质将户型一分为二

客厅与卧室为木地板,

厨房,卫生间以及走道为地砖



因为空间有限,客厅的空间不大,

巧妙地利用空间设计,

简单的摆放了一张灰色的三人沙发,

地面也铺了灰色的地板,营造一个舒适悠闲的氛围。

单身屋主没有看电视需求

因此,客厅并未摆放电视



玄关与客厅有丰富的材质变化

多彩艺术画给空间带来活力



玄关左侧设计款穿衣镜

既增大空间,又方便使用




厨房白色的橱柜,

墙面也是白色的小块的瓷砖,

小小的厨房可以满足日常的需求。

蓝色铁艺餐桌餐椅,

为小小的客厅出其不意的使用鲜艳色彩点缀,

在简约氛围中注入活泼气息。



餐厅旁边的一个小阳台

被打造成书房使用

在窗台下方布置一张长桌

侧面空间安装搁板

方便放置各种书架



卧室在客厅后方

因为布局的关系采光并不是很好

所以设计师利用长虹玻璃做隔断墙

将自然光引入室内



卧室空间,以裸砖为背景,

蓝色的衣柜,绿植点缀,

让空间更有设计感,

一个舒适自然的休憩空间。



卧室灯光设计非常考究,

在隔板下方暗藏等带,

做到见光不见灯,

无主灯设计让卧室更温馨。




卫生间设计很个性

半圆形镜面带给人想像空间

墨绿色墙面衬托出不一样的情调


请您登录后进行评论
点击这里给我发消息
在线预约