我有设计需求 登陆 注册
您当前位置:首页 > 设计资讯 > 行业动态 > 【精选】赖亚楠|当沉稳邂逅灵动 在“大书房”里看天下——人民日报图书馆!
【精选】赖亚楠|当沉稳邂逅灵动 在“大书房”里看天下——人民日报图书馆! 作者:筑艺匠时间:2020-11-03  588人已看过
摘要 Summary
人民日报社图书馆这样一个经历风雨无数、承载着国家命运变迁的重要媒体,有理由请那些不合时宜的评论闭嘴。但令遥遥相望的我们特别乐呵的是,并没有。被公众认为“严肃”的人民日报不仅没拦着大家说笑话,反而一路高歌,将大楼完美呈现。与此同时人们也发现,这家过完70岁生日的老牌媒体立体化多维度平台上的报道风格,也是一脸亲切、年轻、活力满满。

人民日报社图书馆这样一个经历风雨无数、承载着国家命运变迁的重要媒体,有理由请那些不合时宜的评论闭嘴。但令遥遥相望的我们特别乐呵的是,并没有。被公众认为“严肃”的人民日报不仅没拦着大家说笑话,反而一路高歌,将大楼完美呈现。与此同时人们也发现,这家过完70岁生日的老牌媒体立体化多维度平台上的报道风格,也是一脸亲切、年轻、活力满满。



当“人人是媒体”的时代不由分说的到来,坊间热议再也无法被有限的媒介渠道限制,表达喜爱或是无情吊打,对于具有城市公众属性的建筑来说,已经无法阻拦。北京CBD任何一处略高的建筑向东张望,都会注意到人民日报社大楼。


2400余平方米的面积里,包含上架图书15万册、期刊350多种、报纸100多种。馆长介绍说,目前馆藏的书、报、刊共计100余万册,其中有大量新闻类文献,人民日报图书馆已经在业界被誉为“全国最大的新闻专业图书馆”。



秉承着DOMO一贯的质朴简单、平和谦逊,它们就像为这些年代久远的珍藏而生,却又将适宜的美感与光亮,以及适度的东方气质,渗透到整个空间中来,静谧悠远。



在空间里,书籍与纸张是最好的语言,不需要多么华丽的书架;DOMO的书房家具是具有中国传统文人气质的现代书房产品,包容性很强。根据空间的不同,家具的尺度、比例有所调整,整体气质与这里相得益彰。



休闲阅读区带有户外感的环保藤编家具,配合恰到好处的层层递进式分隔,轻松有致。除了查阅、研读、思考、创作,这里早就成了记者们放松身心的场所。瓷瓶、条案、画作、绿植,甚至是桌面器物,每一件都是各得其所的自然与考究。



主题展厅曾经或正在展柜中陈列着的通常是原版。墙面上单页报纸影印版的呈现特别巧妙,黑色金属框架与玻璃展柜的支撑结构相呼应,年代感极强的报纸,成为空间里最好的装饰,令目光聚焦。



特藏区那些古籍善本、特定时期的出版物以一种安然美妙的方式出现,我们忽然意识到,它们已经超越了内容与记录层面,它们本身带有岁月痕迹的质感、色彩以及一笔一划、一点一面,就已经足够值得细细欣赏。



三层与四层(夹层)的阅览区更加开阔,比起一层的报库、二层的基藏库等神秘而不对外的区域,在这里就像来到开放式的小广场,自由,安静,各得其所。中央阶梯区域是当之无愧的视觉焦点,两排高大而轻盈的书架将这里的悦动与两边的安静区隔。上下穿梭之间,想象力在妥帖适宜的空间里升腾。



设计就是设计一种关系,这背后蕴含很深层的内容。图书馆有它自己的关系和逻辑。好的设计师是一个心理学家,要去感应人在空间的心理舒适度.



赖亚楠对自己的总结是:学的是设计,教的是设计,干的也是设计。设计几乎成为生活的全部,没有一点浪费。多年来坚持通过自身设计经历总结的“一体化”的设计理念,并将这一理念在所做的项目中推广坚守。在通过若干项目的实践和最终效果证明了坚持这一设计理念的显著效果。由此形成了系统设计的业务链,即从建筑、景观设计、室内设计、到家具、艺术品、灯具设计,直至跟空间中所有相关联的物件、用品的设计,将空间中所有的能够被体验到和视觉及神经感应到的物或人都作为设计的整合对象。



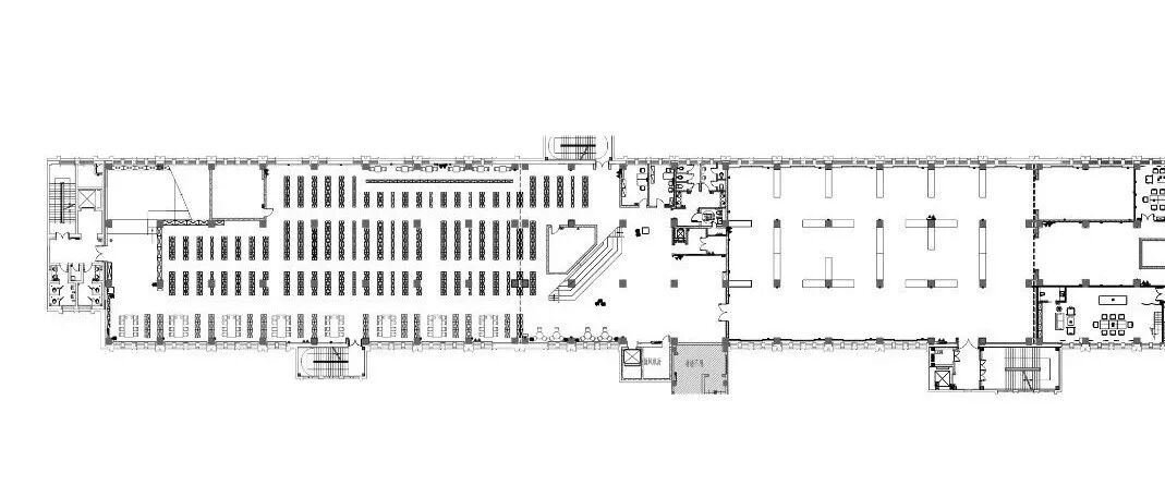
▲一层平面图

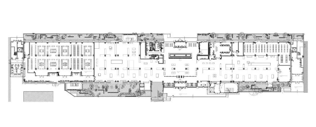
▲二层平面图

▲三层平面图



赖亚楠

知性工作、感性生活的著名设计师北京联合大学艺术学院副教授著名家具设计品牌DOMO nature创始人时尚媒体专栏作家国内倡导并积极实践“一体化的系统整合性设计理念”的先行者中国光华龙腾奖2010年度 “中国设计业十大杰出青年”2012年度 "中国工业设计业十佳杰出设计师”
2016年入主 美国室内设计 “名人堂”
2016年荣获 "中国设计年度人物奖"



创作设计获奖情况: 

2006——作品 “黑白意象” 家具系列荣获第八届中国家具设计奖- 银奖
2007——作品 “融.力” 家具系列荣获第九届中国家具设计奖- 铜奖
2008——作品“明韵清风”家具系列荣获第十届中国家具设计奖- 金奖
2009——作品“墨荷屏风艺术组合” 系列荣获第十一届中国家具设计奖- 铜奖              
2010——荣获 第八届现代装饰国际传媒奖 –“年度原创家具设计大奖”
2010——荣获 居住2010年度“优秀原创设计奖” 

2010——荣获中国光华龙腾奖2010年度 “中国设计业十大杰出青年” 

2010——荣获中国建筑装饰协会“最受设计师信赖奖”

2011——荣获《美好家园》 “美家创-美大奖” 

2011——荣获中国建筑装饰协会设计委员会“最受设计师信赖奖” 

2012——荣获2012年度 “中国工业设计业十佳杰出设计师”

2012——荣获2012年度“中国家具行业十佳原创品牌” 

2012——荣获2012“年度经典艺术传承金奖”

2013——荣获2013上海艺术设计展—上海设计奖.设计师奖

2014——荣获《都市主妇Hers》2013-2014品质生活家大奖

2014——荣获精品家居年度最佳“Best Design 50”奖

2015——荣获中国设计有态度人物奖 

2015——荣获中国家居时代精英设计师奖 

2015——荣获中国家具原创设计奖—大雁奖

2016——荣获美国室内设计名人堂

2017——荣获年度摩登态度匠心奖 

2017——荣获居然设计家家居设计大奖赛卧室家具设计金奖

2018——荣获2017-2018居然设计家设计影响力女性设计师

2018——荣获金羿奖名家具卓越设计奖

2018——荣获中国室内装饰协会TOP100证书

2019——荣获中国室内设计TOP100证书 

2019——荣获北京国际设计周十二间•中国生活设计概念展设计师


请您登录后进行评论
点击这里给我发消息
在线预约