新徽派风格农村宅基地自建房二层别墅 类型:建筑设计 风格:新中式 面积:240㎡ 名称:蓝田新徽派自建房 时间:2020-06-09
项目地点:西安
设计费用:5W
建筑结构:砖混二层(一二层各120㎡;前后花园150㎡院外52㎡)
人工造价:人工280元/㎡
建筑材料:380元/㎡
客户信息:美院毕业从事教培行业,安徽人长居西安;
设计理念:考虑整体拓展可能,结合考虑乡村振兴计划,项目可无限复制,打造最美乡村,魅力新农村人居空间。
功能说明:
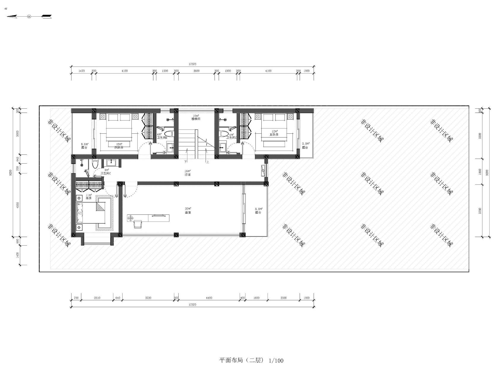
一层(前厅,客厅,老人房套房,公用洗手间,独立餐厅,厨房,工具间)
二层(画室兼起居室/露台,公用卫生间,客房,主次卧独立套房)
项目简介 Project Description 项目概况:农村宅基地自建(宅基地东西宽11.5米;南北深33米)
项目地点:西安
设计费用:5W
建筑结构:砖混二层(一二层各120㎡;前后花园150㎡院外52㎡)
人工造价:人工280元/㎡
建筑材料:380元/㎡
客户信息:美院毕业从事教培行业,安徽人长居西安;
项目概况:农村宅基地自建(宅基地东西宽11.5米;南北深33米)项目地点:西安
设计费用:5W
建筑结构:砖混二层(一二层各120㎡;前后花园150㎡院外52㎡)
人工造价:人工280元/㎡
建筑材料:380元/㎡
客户信息:美院毕业从事教培行业,安徽人长居西安;
设计理念:考虑整体拓展可能,结合考虑乡村振兴计划,项目可无限复制,打造最美乡村,魅力新农村人居空间。
功能说明:
一层(前厅,客厅,老人房套房,公用洗手间,独立餐厅,厨房,工具间)
二层(画室兼起居室/露台,公用卫生间,客房,主次卧独立套房)
本项目为西安郊县项目,原有农村住宅为红砖结构传统人子顶柴房;因房屋老旧重新翻盖,周边空气清新,临近山脚,房屋附近由规模农田。项目初期本意为民宿兼住宅自用,整体风格打算以现代极简风格,框架结构呈现。在多番了解后发现并不适合作为民宿使用,功能性变成纯住宅项目,在项目总造价上业主希望控制尽量低造价,但是必须保障整体美观。设计从初期的极简建筑风格后结合安徽籍人士对徽派建筑的亲切感,有考虑到整体经济的造价,结构确定为砖混二层结构带院落,整体风格为新徽派建筑,以确保人的乡愁得以体现,整体白色基调配以简化的马头墙元素,深色线条做檐口,整体简洁大气,传统的飞檐融入,非对称性的大门!











请您登录后进行评论






